91 MacARThur Avenue
A bold architectural statement set on one of Closter’s most prestigious enclaves, this newly constructed 9,251-square-foot estate blends natural stone and Hardie® panel siding with refined, contemporary design. Every element has been curated with precision, scale, and permanence in mind.
A dramatic two-story foyer with a 60-inch chandelier introduces soaring 10-foot ceilings, 6-inch natural white oak flooring, and a self-supported staircase with white oak treads and metal balusters. The main level flows seamlessly through formal dining with butler’s pantry, private library, expansive family room with floating Venetian plaster fireplace wall, and a designer Modiani kitchen.
The kitchen is both functional and sculptural — custom Modiani cabinetry, quartz counters and backsplash, dual sinks with pot filler, oversized 10-foot island with seating for five, and full Thermador appliance suite including 32” refrigerator and 32” freezer columns, double dishwashers, wine cooler, and microwave. Sliding glass doors open directly to the rear patio for seamless indoor-outdoor living.
The exterior experience rivals the interior. A covered porch, porcelain-threaded stair entry, and rear patio overlook a resort-style 14×30 pool with integrated seating shelf, oversized porcelain surround, outdoor kitchen with grilling station, refrigerator, sink, and full speaker system. A private balcony extends from the primary suite, offering elevated views of the lushly landscaped grounds.
The upper level hosts a private primary wing with vestibule sitting area framed by a large picture window, terrace overlooking the yard, boutique-style walk-in closet with center island, and spa-inspired bath with radiant heated floors and electronic smart shower valves. Three additional en-suite bedrooms with walk-in closets and a bonus loft area complete the level. Every bathroom features Porcelanosa tile and radiant heat.
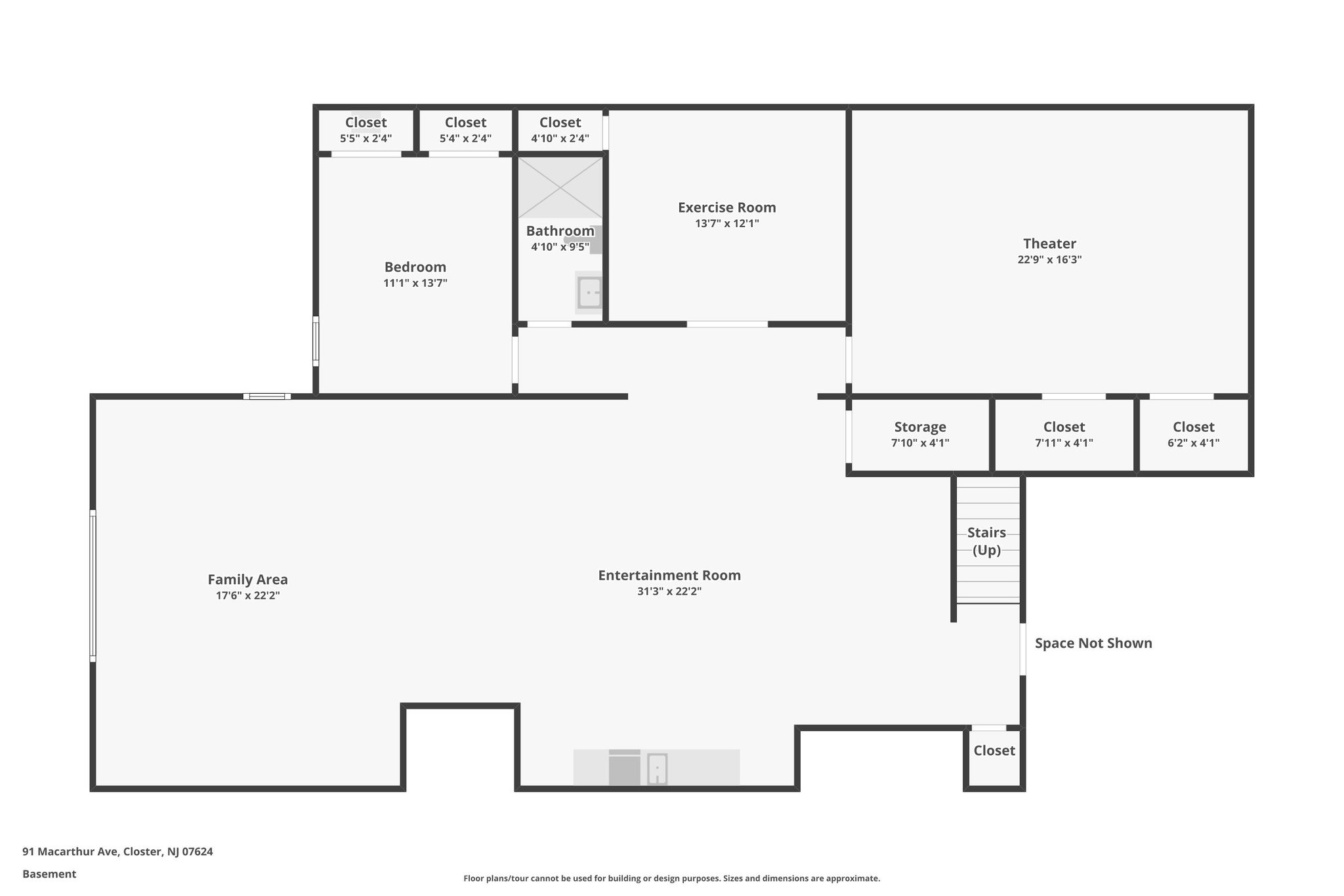
The fully finished lower level, with 10-foot ceilings, delivers lifestyle at scale — professional home gym, soundproof movie theater with laser projector and surround sound, expansive recreation room, wet bar with wine display, private bedroom and full bath, and picture window designed for a serene Zen garden backdrop.
























